7 Important Architectural Drawings to Print for Construction Projects
Construction projects often require printing various types of architectural drawings—site plans, floor plans, structural drawings, mechanical drawings, and so on. Each type serves a specific purpose.

Construction projects often require printing various types of architectural drawings—site plans, floor plans, structural drawings, mechanical drawings, and so on. Each type serves a specific purpose. For instance, some plans focus on the overall layout, while others highlight structural details or aesthetic elements. Typically, these plans guide the cost and direction of a building project, which is vital for every architect, engineer, and contractor involved.
Without Architectural and Construction drawings, diving into a building project would be chaotic. These drawings are guides and ensure that every construction project is on track.
In this guide, we’ll cover seven of the most important architectural drawings you need to print for a successful construction process.
1. Site plan
A site plan provides an aerial view of the project site. It reveals the boundaries of a property, means of access to the site, existing structures, topography, utilities, and landscaping elements.

Photo Credit – Chronos Studeos | The Competition 2019.
Site plans help architects, engineers, and local authorities understand how the building fits within its surroundings. They are crucial for zoning approvals, permit applications, and site preparation. Since these drawings contain fine details, large-format printing (24×36 inches or larger) is recommended for clarity and easy reference on-site.
Who needs site plans?
Architects
Civil engineers
Site planners
Construction managers
Tip: When creating site plans, use high-contrast line weights to differentiate property boundaries, pathways, and utilities.
2. Floor plan
A floor plan is another important architectural drawing to print. Floorplans show the arrangement of the spaces in the building. It is similar to a map showing the layout of the building from the top. This allows builders, electricians, and plumbers to execute designs accurately.
A floorplan indicates the walls, windows, doors, and other features like furniture fittings and so on. A good floor plan ensures that there is a clean transition between spaces in the building. Printing high-resolution construction plans ensures all elements are clearly visible and easy to follow.

Who needs floor plans?
Architects
Contractors
Interior designers
Electricians and plumbers
To optimize your floor plans, you want to keep dimension lines clear and easy to read by using consistent spacing and font sizes. Also, highlight key structural elements like load-bearing walls and columns with thicker lines.
3. Elevation & perspective drawings
The elevation drawing is a projected 2D representation of each side of the house. It provides a complete view of a particular side of the house; showing the vertical dimensions and the materials needed for these parts. Generally, it is the orthographic projection of a building’s exterior or interior features. A proper elevation drawing shows every side of the house in detail.

Perspective drawings are 3D drawings that show detailed connections between the exterior elements with accurate measurements. Also, they depict the placement of different building materials like bricks, stones, paints, and so on. The 3D drawings give a broad view of each side of the house and provide a realistic image of the exterior.
Interior perspective drawings show the elements built into the building interiors and come in 3D forms, revealing the furniture placements and designs, lighting types, floor patterns, and paint colors.

Elevation and perspective drawing prints are particularly useful for reviewing design elements and confirming aesthetic choices with the project team. Be sure to label material types and textures for a better understanding of finishes. Also, ensure shadows and depth effects are optimized to improve readability.
Who needs elevations and perspective drawings?
Architects
Clients and stakeholders
Construction teams
Regulatory bodies
Tip: Use color printing for elevation and perspective drawings. This provides better visual clarity, especially for client presentations.
4. Landscape plans
A landscape plan focuses on the outdoor environment surrounding the building. It details elements like gardens, walkways, patios, outdoor lighting, and drainage systems. These drawings help ensure proper environmental planning and compliance with local regulations.
Landscape plans also define materials and plant selections, making them valuable for landscape contractors.

Photo Credit: P-jitti | Shutterstock
Who needs landscape plans?
Electricians
Plumbers
Contractors
Building inspectors
When creating landscape plans, use color-coded elements to differentiate between hardscape, softscape, and water features—just like the image above. You should also plant legends and symbols for easy identification by contractors.
And, as you probably know, large-format color printing is the ideal option for landscape plans. It’s also recommended that you print on water-resistant material like Tyvek, Mylar, or polypropylene—which is more suitable for outdoor use.
5. Structural drawings
Structural drawings focus on the framework of the building, showing load-bearing walls, beams, columns, and foundation details. These drawings are critical for engineers and construction teams to ensure the building meets safety standards and can withstand environmental forces.

Photo Credit: SEQ building design
Structural drawings also outline the materials and construction methods required to maintain stability. Like the site plans, printing structural drawings in large format also ensures that every detail remains legible and accessible for on-site reference.
Who needs structural drawings?
Mechanical engineers
HVAC contractors
Building maintenance teams
Architects
With structural drawings, use bold line weights to emphasize critical structural elements like beams and footings. Also, be sure to accurately label reinforcement details, connection points, and load specifications.
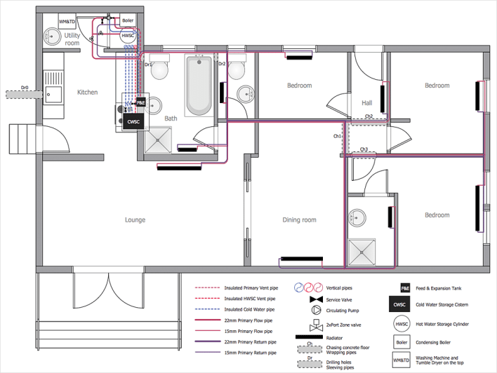
6. Electrical and plumbing plans
Electrical plans show wiring layouts, light fixtures, circuit breakers, and power outlets, ensuring proper electrical distribution throughout the building.

Photo credit: Conceptdraw.com
Plumbing plans outline water supply lines, drainage systems, and fixture placements, helping plumbers install pipes and fittings efficiently. Printing these drawings in detail ensures contractors have a precise guide to prevent errors in installation and compliance with building codes.
Who needs electrical and plumbing plans?
Electricians
Plumbers
Contractors
Building inspectors
Tip: With electrical and plumbing plans, use different colors for different utilities (e.g., blue for water and red for electrical) for quick identification. Clearly mark electrical panel locations, circuit numbers, and voltage requirements.
7. Mechanical and HVAC plans
Mechanical and HVAC (Heating, Ventilation, and Air Conditioning) plans illustrate ventilation systems, ductwork, and heating and cooling unit placements. These blueprints are essential for maintaining proper airflow and temperature regulation inside the building.

Photo credit: Skillcat
High-quality prints help mechanical engineers and HVAC contractors follow system layouts accurately, reducing the risk of inefficiencies or costly modifications later.
Who needs mechanical and HVAC plans?
Mechanical engineers
HVAC contractors
Building maintenance teams
Architects
To optimize your HVAC plans, use dashed lines to represent ductwork hidden above ceilings. Indicate air supply and return locations too for easy installation. And, print on durable, smudge-resistant paper for prolonged on-site use.
Conclusion
Architectural drawings are essential for planning and executing a construction project with precision. Each type of drawing serves a specific purpose and addresses key challenges in the building process.
Site plans, for instance, define property boundaries and the building’s relationship with its surroundings, while floor plans guide the internal layout. Elevation drawings ensure accurate vertical dimensions. Structural, electrical, plumbing, and mechanical plans provide the technical details needed for safe and efficient construction.
Because these drawings are so critical, high-quality printing is a must. Clear, well-optimized prints help contractors, architects, and engineers stay on the same page during project delivery. Choose large-format, high-resolution printing to get a thorough output quality. And, always use a professional printing service to ensure your plans look good on paper.
Choose the right partners for efficiency. Contact PrintMyDrawings for the following print needs
Architectural Design Drawings
Construction Detail Drawings
Electrical Drawings
Engineering Drawings
Mechanical Drawings
Business Documents